Casa Gaia

Bombita, Cabarete

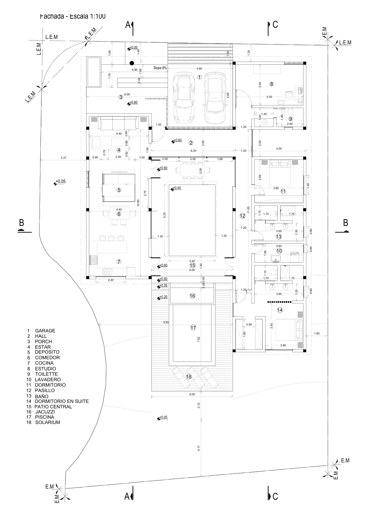
Casa Gaia es un proyecto concebido como una transición armónica entre exterior protegido e interior abierto, diseñado para el clima tropical y un estilo de vida sereno y conectado con la naturaleza. Su disposición en forma de “C” abraza un patio central que organiza la dinámica espacial y climática de la vivienda, mientras una envolvente de ladrillo visto regula luz, aire y privacidad.

 

En su interior se distinguen tres alas: la privada, con dormitorios y estudio; la social, con sala, comedor, cocina y bar integrados al patio; y un vestíbulo central que articula la circulación y refuerza al patio como corazón verde de la casa. La materialidad combina piedra, hormigón, ladrillo, madera y vidrio para lograr ventilación cruzada, control solar y apertura visual hacia la vegetación y el cielo. Con estrategias de diseño pasivo y uso de materiales locales, Casa Gaia redefine los límites entre protección y apertura, integrando confort, intimidad y vida en armonía con el entorno.

Scroll to Top